Objekt
Mehrgenerationenhaus am Waldrand
Fertigstellung
2015
Ort
Klushau, Schaffhausen
Leistung
Entwurf, Vor- und Bauprojekt, Ausschreibungs- und Ausführungsplanung
Typ
Neubau EFH
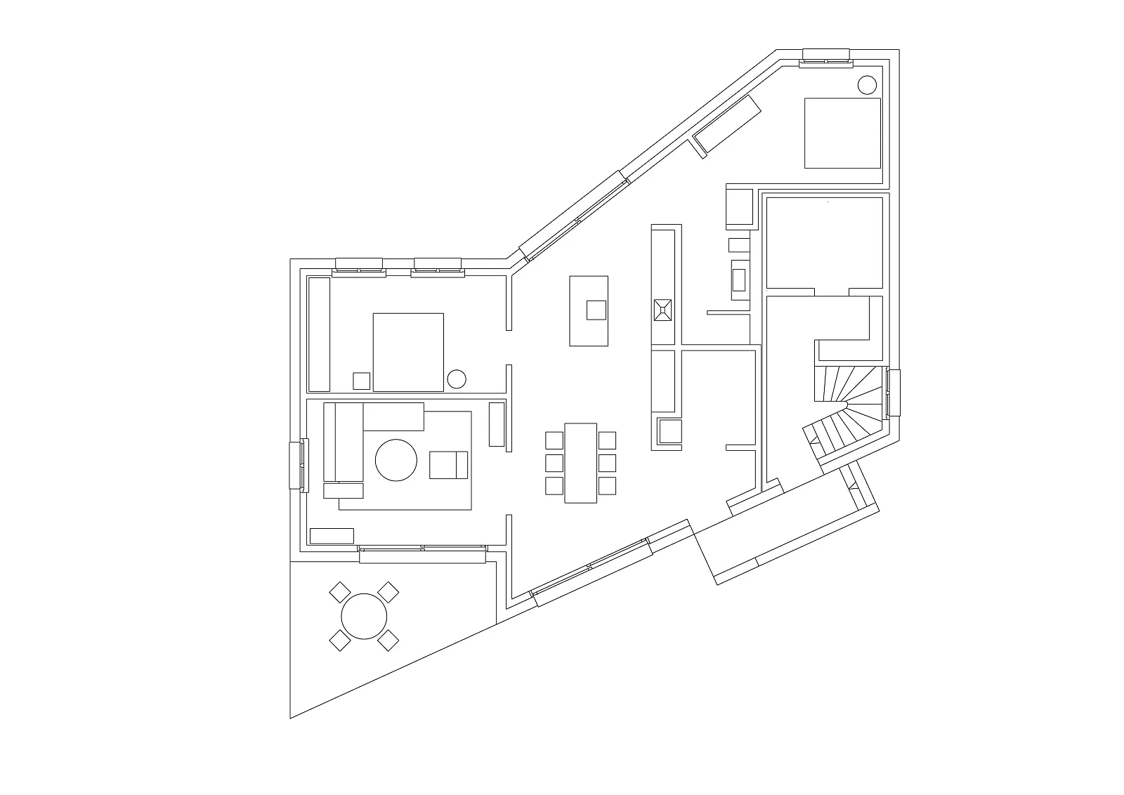
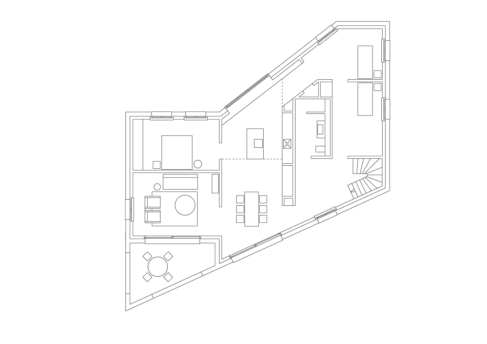
Vertikal erlebbare Raumschichten lassen den Aussenraum im Innern widerspiegeln
Im Sinne der Verdichtung wurde auf der idyllisch gelegenen Waldrandparzelle ein Einfamilienhaus mit Einliegerwohnung geplant, welche als eigenständige altersgerechte Gartenwohnung konzipiert ist. Die Idee des Mehrgenerationenhauses wird hier verwirklicht.
Das Grundstück liegt angrenzend an ein Waldgebiet. Die Parzelle wird als ebene Einheit im längsseitig abfallenden Hang wahrgenommen. Gegen Westen und Norden wird die Parzelle durch den Wald und im Süden durch eine kaum befahrene Zubringerstrasse begrenzt.
Für den Entwurf stark prägend sind die Qualität des Aussenraumes und die polygonale Form des Grundstückes, im Besonderen der nordseitige Einschnitt sowie die engen Reglementierungen bezüglich dessen Bebaubarkeit dessen. Diese Faktoren widerspiegeln sich in der Gebäudeform, der Raumstruktur und der Situierung.
Durch einen zentralen Nord-Süd orientierten «Hallenraum», der den Mittelpunkt des Wohnens darstellt und die gesamte Grundstücktiefe erlebbar macht, werden die Schlaf- und Nebenräume verbunden. Ein zweigeschossiger Bereich im Obergeschoss verbindet dieses Zentrum des Hauses.









