Fertigstellung
2019
Objekt
Sanierung Altstadliegenschaft
Ort
Schützengraben, Schaffhausen
Leistung
Machbarkeit, Entwurf, Vor- und Bauprojekt, Ausschreibungs- und Ausführungsplanung
Typ
Umbau Wohnen und Gewerbe
Individualiät auf kleinem Raum
Diese Liegenschaft am Rande der Schaffhauser Altstadt ist eines der wenig erhaltenen Wohnhäuser aus der Zeit um 1900. Beim Umbau war es wichtig, einen respektvollen Umgang mit dem Bestand zu finden.
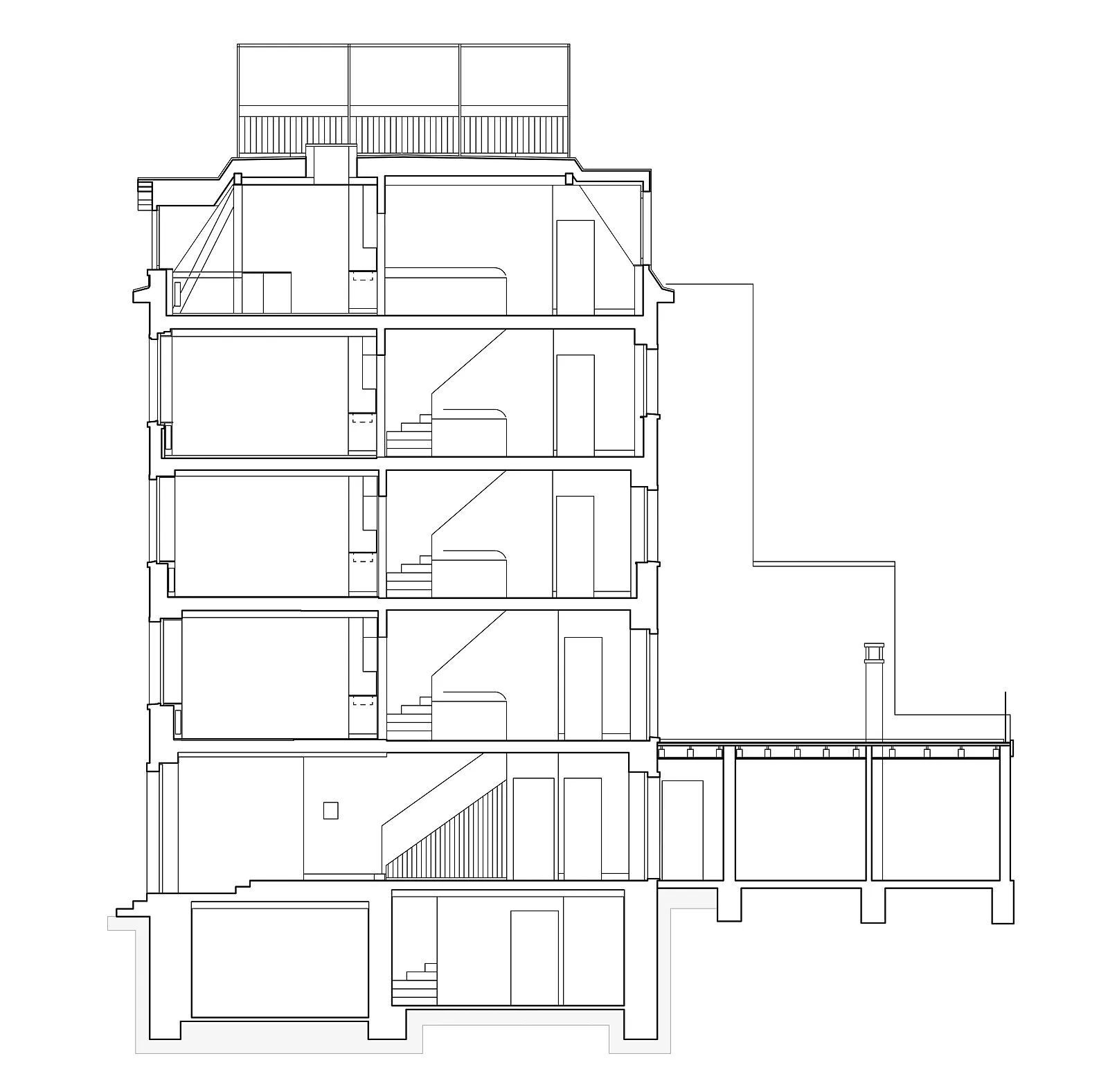
Das Wohnhaus zum hinteren Rosengarten in Schaffhausen befindet sich am Rande der Altstadtzone, eingebunden in eine Häuserzeile. Die fünfgeschossige Liegenschaft mit Geschäftsteil im Erdgeschoss wurde 1902 auf den Grundmauern einer noch älteren zweigeschossigen Liegenschaft errichtet. Der Gewölbekeller stammt noch aus dieser Zeit.
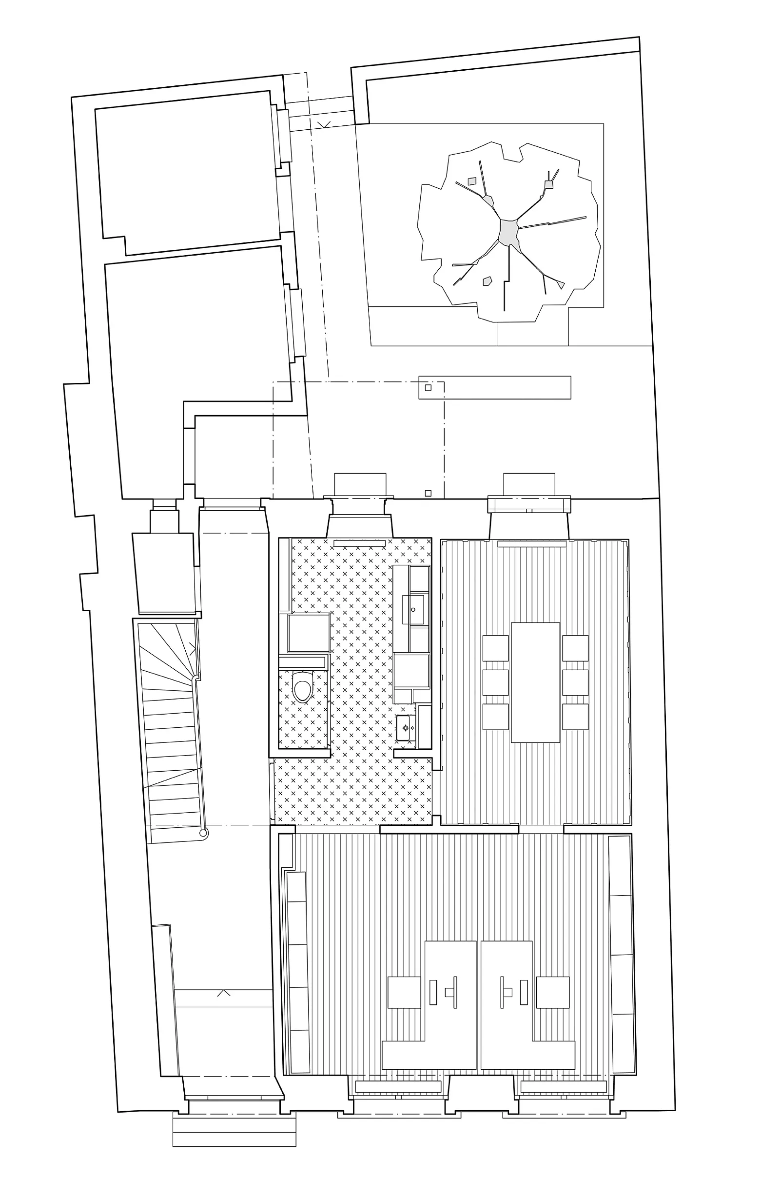
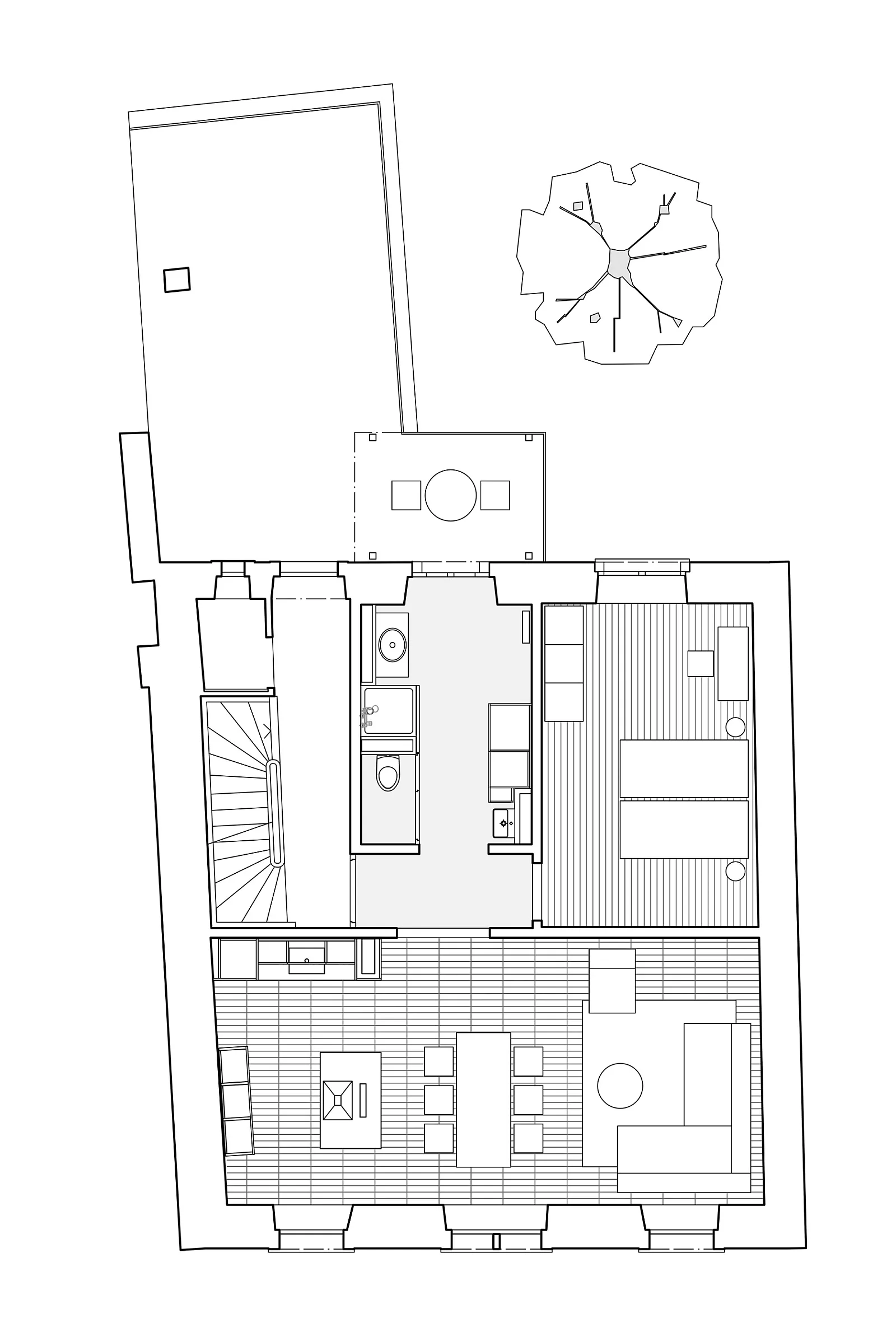
Das Nord-Süd orientierte Haus grenzt im Süden an einen kleinen und begrünten Innenhof mit ehemaligem Waschhaus. Gegen Norden öffnet sich das Gebäude zum Schützengraben und zur stark befahrenen Bachstrasse hin.
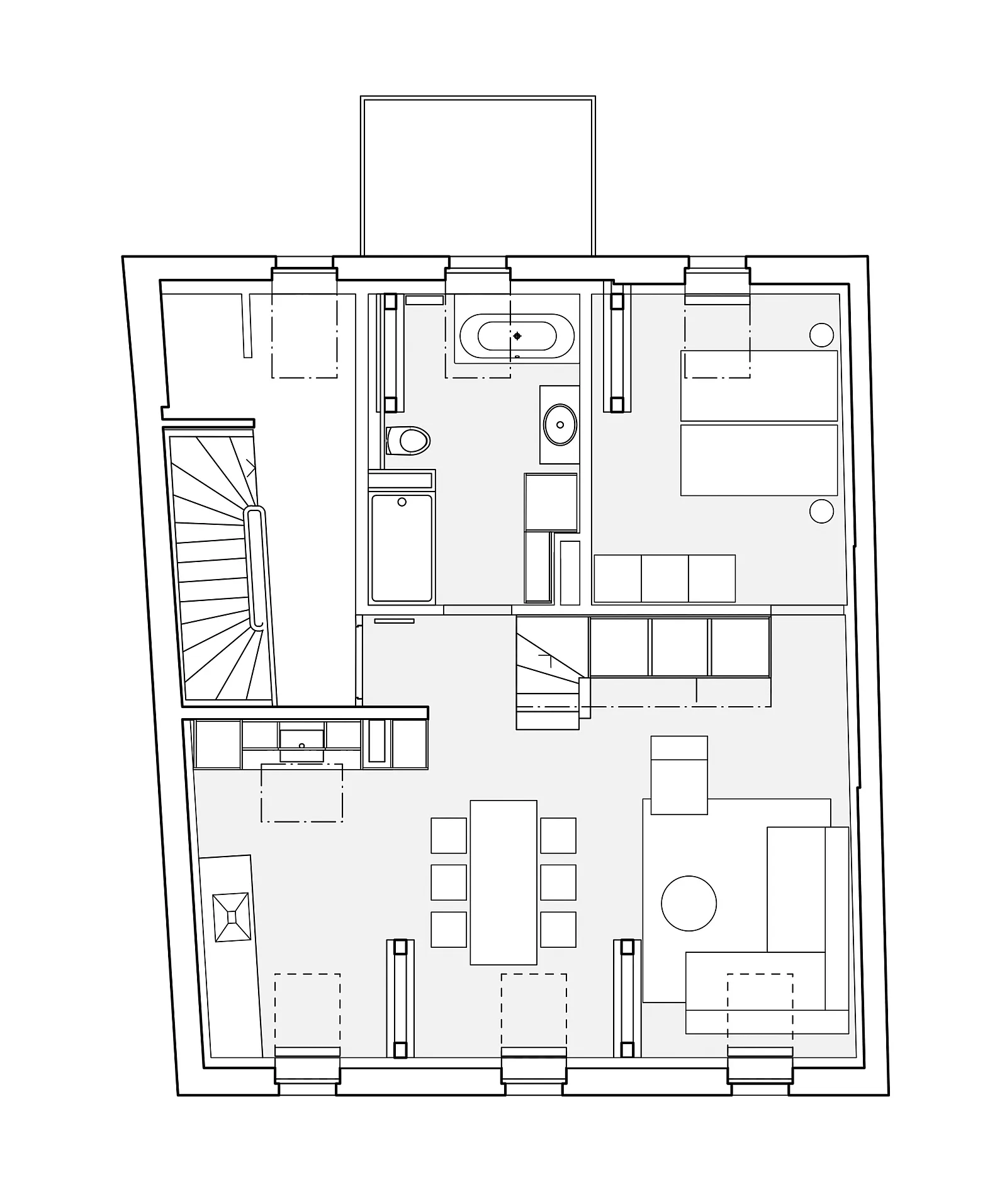
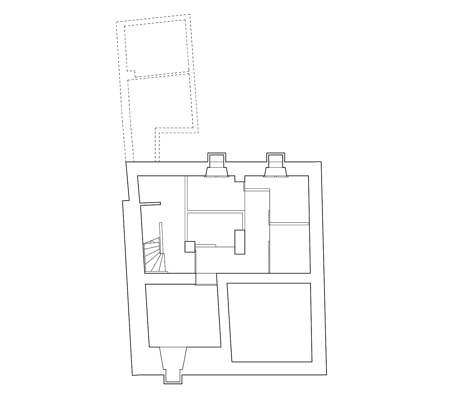
Bei der Sanierung des Hauses wurde das gesamte Dachgeschoss neu gedämmt und die bestehenden Mansardenzimmer zu einer Wohnung umgebaut. Der Zugang zur Dachterrasse wurde neu gestaltet und die Zinne zur Dachterrasse ausgebaut.
Der Gewerberaum im Erdgeschoss wurde zu einem Büro mit separatem Sitzungszimmer umgebaut und erhielt zum Hof hin eine kleine Küchenzeile sowie eine neue Nasszelle.
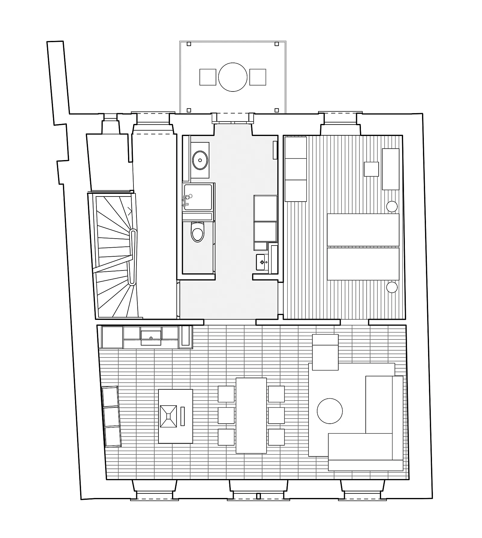
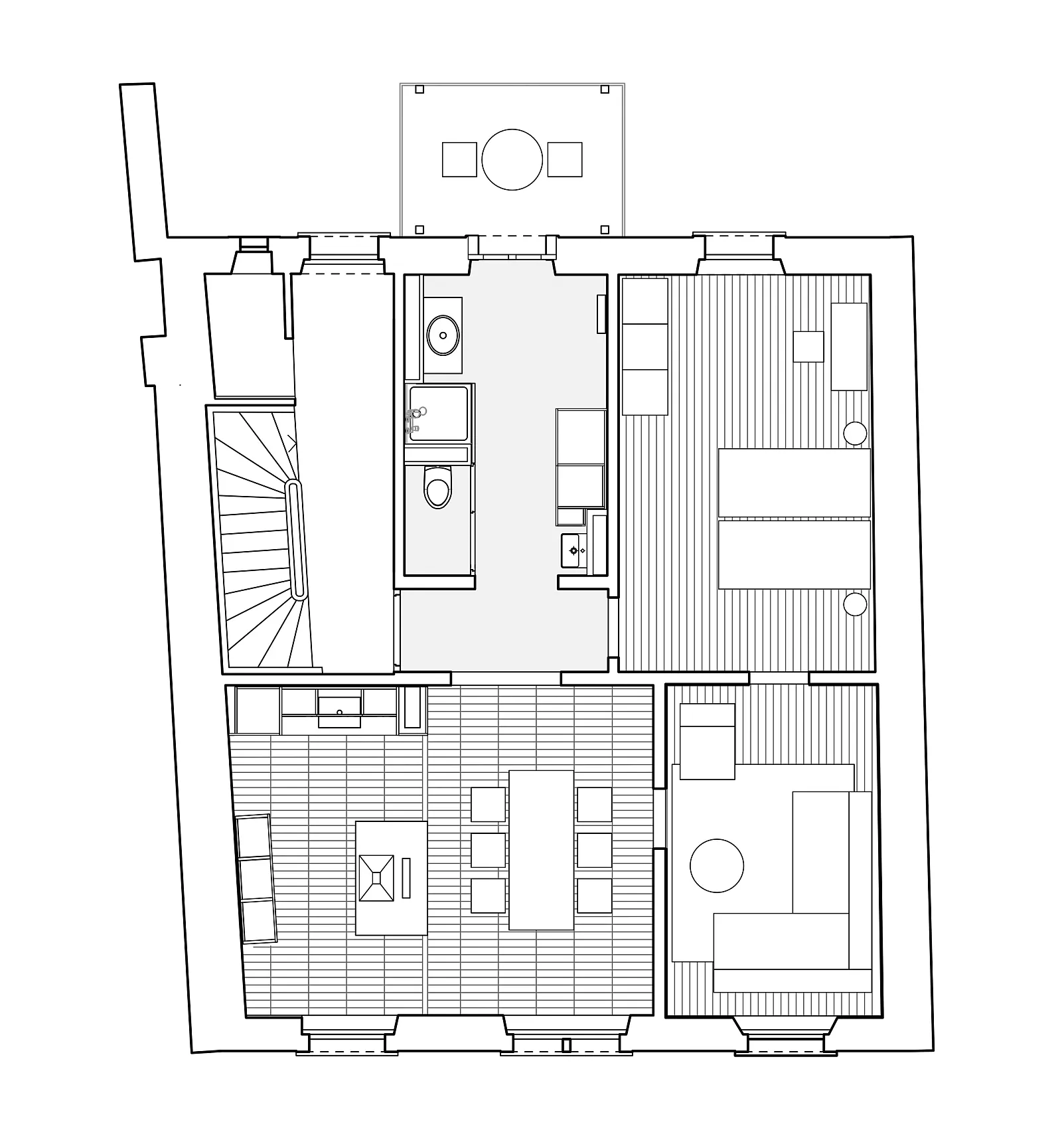
Die Wohnungen in den Obergeschossen wurden bei der Sanierung auf die statische Raumunterteilung zurückgebaut. Um eine räumliche Grosszügigkeit zu erzielen, wurden Türöffnungen vergrössert und Querbezüge geschaffen.
Sämtliche Obergeschosse erhielten einen Balkon zum Innenhof, der über das offene Entrée und die flexible Raumunterteilung der neuen Nasszellen erschlossen wird.
























